À retenir
- ROI de construction jusqu'à 26,07 % et APR de 22,35 % sur ROOTS Villa 1, une villa boutique tokenisée à Ubud, au cœur de Bali.
- Ticket d'entrée à partir de 28 $ par token, durée de 15 mois, sortie prévue le 22 juillet 2026 à 353 000 $ (contre 303 000 $ au lancement).
- 161 m² couverts, piscine de 11,2 m, terrain de 400 m², architecture Joglo réinterprétée par un bureau primé pour investir villa Bali Ubud sans aller sur place.
- Pour les Français : PT PMA, bail Hak Sewa Bangunan, fiscalité LMNP côté France, le tout sans gestion locative à distance grâce au modèle tokenisé Binaryx.
En 2024, Bali est restée parmi les trois premières destinations mondiales pour les nomades numériques et les expatriés. Les séjours longue durée y progressent de plus de 30 % d'une année sur l'autre. Pourtant, alors que le tourisme repart et que le prix du terrain grimpe, les projets immobiliers de qualité, alliant valeur esthétique et potentiel d'investissement, restent rares. Pour un investisseur français qui cherche à investir villa Bali Ubud sans gérer un chantier à 12 000 km, la fenêtre d'entrée se referme vite.
C'est dans ce contexte que la plateforme Binaryx tokenise ROOTS Villa 1, une opportunité d'investissement en construction de premier plan à Ubud. La villa de luxe est valorisée 303 000 $, avec un début des ventes le 22 mai 2025 à 17h00 UTC. Le projet en est à ses débuts : le terrain a été acquis et la préparation du site est en cours. Les investisseurs visent un ROI de construction pouvant atteindre 26,07 %, et un rendement annualisé estimé à 22,35 % à la fin du chantier. Ces chiffres reflètent l'emplacement de choix de la villa et son fort potentiel locatif.
ROOTS Villa 1 marie l'architecture traditionnelle javanaise Joglo et un design contemporain. Elle offre 130 m² d'espace de vie avec deux chambres, dans un écrin végétal au cœur d'Ubud. C'est bien plus qu'un investissement : c'est la possibilité de devenir copropriétaire d'une résidence balinaise de haute qualité, pensée pour durer. Surtout, le terrain a été sécurisé à un prix convenu six mois avant l'achat. Pendant cette période, sa valeur de marché a doublé. Le projet vaut donc déjà bien plus que son coût initial, ce qui crée une valeur acquise pour les investisseurs dès le premier jour.
Voyons ensemble les détails de cette opportunité prometteuse.
Explorez les villas tokenisées à Bali
ROOTS Villa 1 et d'autres opportunités d'investissement en Indonésie sont accessibles dès 28 $. Découvrez les fiches détaillées avant le lancement.
Voir les propriétés disponiblesPoints clés de l'investissement
- Emplacement : Ubud, centre de Bali, serein, recherché et en pleine croissance
- Propriété en bail : 29 + 10 ans
- Rendement annualisé de construction : jusqu'à 22,35 %
- ROI de construction : jusqu'à 26,07 %
- Prix de sortie : 353 000 $ contre 303 000 $ au prix de construction
- Date de sortie : 22 juillet 2026 (durée de 15 mois)
- Point d'entrée du token : de 28 $ à 31,62 $ selon la phase
- Design prêt pour Instagram : fort attrait photo et vidéo, potentiel de réservations locatives portées par les influenceurs
- Concept unique : architecture d'inspiration Joglo réinterprétée sous un regard moderne
Composition du complexe
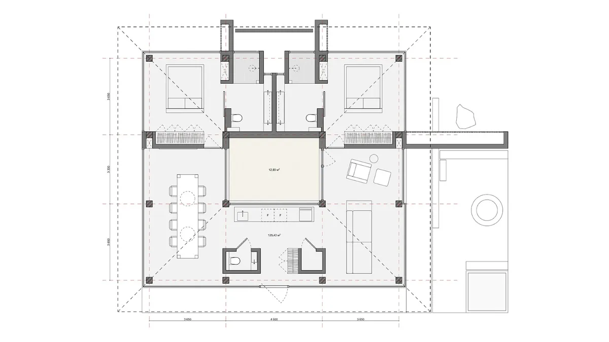
ROOTS est une villa de luxe indépendante, nichée dans les paysages émeraude du centre d'Ubud. Conçue par une équipe d'architectes primés, comprenant des studios internationalement reconnus et des designers ukrainiens de renom, le projet incarne une synergie créative rare. Ce n'est pas un développement multi-unités, mais une propriété boutique à forte conviction. Elle est pensée comme une retraite privée dans la nature. Le profil cible : nomades numériques, passionnés de bien-être et locataires haut de gamme en quête de quelque chose de différent.

Le concept architectural est une interprétation moderne du Joglo, la maison traditionnelle javanaise, reconnue pour son pavillon central élancé et sa disposition symbolique. ROOTS embrasse cet héritage tout en simplifiant les formes en géométries épurées, et en appliquant une palette calme et tactile.

Chaque aspect de la villa, du toit emblématique en bois de fer à la salle centrale à espace ouvert, invite à un sentiment d'enracinement et d'introspection. Qu'elle soit utilisée comme résidence privée, location boutique ou espace de retraite, la villa s'intègre naturellement à la jungle environnante. Cela crée une expérience profondément immersive. La propriété s'étend actuellement sur 400 mètres carrés de terrain, ce qui offre amplement d'espace pour l'intimité et le paysagisme.
À l'intérieur de la propriété
ROOTS Villa 1 est un chef-d'œuvre de narration spatiale. Elle est conçue non seulement pour vivre, mais pour habiter le moment présent. Sa disposition s'inspire du Joglo javanais traditionnel, réinterprété sous un prisme contemporain.

L'espace de vie central est un volume ouvert, couronné par un plafond double hauteur en bois de fer. Il rend hommage à l'artisanat local tout en évoquant calme et amplitude. Ce cœur convivial donne le rythme émotionnel de la maison. Il s'ouvre depuis le parking ombragé en bois et l'entrée cérémonielle, à travers un jardin de bambou et de pierre baigné de lumière zénithale.

Presque chaque pièce s'ouvre directement sur une végétation luxuriante, des patios privés ou des espaces de jardin. Les frontières entre intérieur et extérieur s'estompent. Les zones sociales et privées sont soigneusement séparées pour garantir à la fois connexion et intimité. Le résultat : une villa enracinée dans son contexte naturel, qui offre par ailleurs une sophistication internationale. La surface totale fermée du bâtiment est de 161 mètres carrés, complétée par une piscine privée de 11,2 mètres.
Caractéristiques clés de l'espace et de l'agencement :
- Grand espace de vie ouvert sous le toit en bois de fer de style Joglo, avec poutres apparentes
- Cuisine îlot avec meubles en MDF peint monolithique et plans de travail en acier inoxydable brossé, dans une combinaison d'éléments minimalistes et industriels
- Transitions fluides intérieur-extérieur depuis toutes les pièces principales
- Zonage clair entre espaces partagés et privés, pour le confort et l'intimité

Palette de matériaux et points forts du design intérieur :
- Terrasse et plafond en bois de fer : dense, texturé et ancrant. Un repère tactile pour toute la maison.
- Finitions en placage noir : mobilier vertical sur mesure, qui fait écho aux traditions de sculpture sur bois balinaises avec une silhouette moderne.
- Meubles en MDF peint : surfaces mates dans la cuisine et les espaces de rangement, qui se dissolvent visuellement et laissent l'espace et la lumière au premier plan.
- Sol en carrelage de marbre gris : frais sous les pieds, et évocateur de la pierre volcanique de Bali.
- Murs en plâtre effet béton : surfaces douces et réactives à la lumière, qui servent de toile architecturale.
- Accents en acier inoxydable : présents dans la cuisine et les salles de bains, ils offrent un contraste net et moderne avec les textures organiques.

ROOTS Villa 1 n'est pas simplement une résidence. C'est une galerie vivante, où chaque finition raconte une histoire et chaque élément spatial invite au calme, à la réflexion et à la connexion avec la terre.
Présentation de l'emplacement
ROOTS Villa 1 n'est pas à Bali. Elle est Bali.
Située au cœur de la ceinture verte florissante d'Ubud, cette villa est entourée de rizières, de canopées de jungle et d'énergie spirituelle. C'est l'essence même qui a rendu Bali légendaire. Contrairement aux côtes surdéveloppées de Canggu et Seminyak, ce coin du centre de Bali reste préservé. Il offre un mélange rare d'authenticité et d'attrait premium.

Ce qui se trouve aux alentours :
- 10 minutes du centre d'Ubud, avec ses galeries d'art, marchés bio et écoles de yoga
- 15 minutes de Tirta Empul et d'autres temples sacrés
- 45 minutes du mont Batur et de ses treks au lever du soleil
- 90 minutes de l'aéroport international Ngurah Rai
La zone devient rapidement un aimant pour les nomades numériques haut de gamme, les voyageurs éco-responsables et les expatriés européens fortunés. Ils cherchent plus qu'un séjour balnéaire : ils recherchent du sens, du calme et du renouveau.
C'est ce qu'offre ROOTS : un ancrage dans la nature, avec toutes les promesses de la prochaine vague de tourisme haut de gamme à Bali.

À propos du promoteur
Jaya Eka Persada (JEP) est bien plus qu'une simple entreprise de construction. C'est une puissance de développement à cycle complet, à laquelle font confiance les principaux investisseurs et promoteurs de Bali. Ce qui distingue JEP, ce n'est pas seulement l'expérience. C'est la maîtrise de chaque étape du processus.
Pourquoi les investisseurs font confiance à JEP :
- Cycle complet conception-construction-livraison sous un même toit
- Bureau d'architecture interne (officiellement reconnu en Indonésie)
- Fabrication de meubles en propre et showroom de 300 m² à Kerobokan
- Gestion de projet et supervision internes, du plan à la livraison
- Services de gestion immobilière pour une livraison prête à la location
- Chaînes d'approvisionnement directes depuis l'Indonésie et la Chine, avec contrôle qualité interne via Woodara
JEP est passé d'artisans sur le terrain à orchestrateurs de projets de plusieurs millions de dollars. Sur le marché en pleine croissance de Bali, le beau ne suffit pas. C'est la fiabilité qui compte. Avec des délais éprouvés, des budgets transparents et une philosophie axée sur la livraison, JEP s'assure que chaque propriété est livrée comme promis.
« À Bali, on peut construire vite. Ou on peut construire bien. Pour faire les deux, il faut être l'architecte de chaque processus. C'est ce que nous sommes. » (JEP)
Qualité de la construction
Façonnée, pas simplement construite.
ROOTS Villa 1 est construite selon les standards de l'hôtellerie boutique, et non de la construction de villas conventionnelle. Chaque joint, carreau et finition est sélectionné pour sa longévité, son harmonie visuelle et sa satisfaction tactile. C'est là où la précision japonaise rencontre l'âme balinaise.

Standards et points forts de la construction :
- Fondations : béton armé profond pour la stabilité en pente et la résistance sismique
- Système structurel : piliers en bois de fer avec renfort de poutres métalliques en I, soit la durabilité de l'acier avec l'élégance du bois
- Système de murs : murs à double brique avec lame d'air, pour l'isolation, la résistance à l'humidité et le confort acoustique
- Toiture : toit en Galvalume avec couche isolante thermique et drainage sur mesure
- Électricité et plomberie : certifiées selon le code indonésien, avec des équipements aux standards européens et compatibilité maison intelligente intégrée
Humidité, moisissures et défis tropicaux, anticipés dès le départ :
- Murs extérieurs traités avec des composés hydrofuges
- Bois séché au four, traité et installé avec un espacement de ventilation
- Zones humides (salles de bains et cuisine) imperméabilisées avec des mastics allemands à double couche
- Conception de flux d'air intégré : ventilation croisée naturelle plus ventilateurs de plafond, ce qui réduit la dépendance à la climatisation
Le promoteur offre une garantie structurelle de 3 ans et une garantie de finition intérieure d'1 an. C'est un témoignage de qualité à long terme. Ce n'est pas une villa qui nécessitera des réparations au bout d'un an. Elle est construite pour durer, tout comme votre investissement.
Calculez votre rendement potentiel sur ROOTS Villa
Simulez l'allocation, la durée et les revenus attendus pour ROOTS Villa 1 et les autres villas tokenisées en Indonésie sur votre tableau de bord Binaryx.
Accéder aux fiches propriétésAvancement de la construction
Déjà en cours d'élévation.
Le site de développement de ROOTS Villa 1 est entièrement acquis, et la préparation du site commence maintenant. Cela comprend le défrichage, la délimitation des limites et les études de sol, en préparation des travaux de fondation. La construction se déroulera par étapes, avec des mises à jour régulières partagées via la plateforme Binaryx au fur et à mesure de l'avancement.
Des mises à jour régulières avec documentation photo et vidéo seront bientôt disponibles pour les investisseurs. Tous les travaux sont gérés sur place par l'équipe de construction interne de JEP, sans sous-traitance.
Cela signifie aucun retard lié à des goulots d'étranglement tiers, et aucune surprise.
Détails d'investissement de ROOTS Villa
La vente démarre le 22 mai 2025, à 17h00 UTC.
ROOTS Villa 1 est la première villa boutique d'un nouveau complexe soigneusement conçu à Ubud, Bali. Le terrain est acheté, la villa est désormais en construction, et la propriété tokenisée sera ouverte au public le 22 mai.
Nous levons 303 000 $ pendant la phase de construction. Une fois achevée, la villa devrait générer de solides revenus locatifs à court terme, grâce à son emplacement de choix et à son design. L'appréciation de la villa atteindra 353 000 $ après la fin de la construction.
Propriété en bail sécurisée
Contrairement à la plupart des villas à Ubud, ROOTS Villa 1 est disponible pour l'investissement fractionné sous un titre de bail de 29 ans avec une extension de 10 ans. Cela offre une stabilité à long terme et une clarté juridique pour les investisseurs internationaux.
Le bail accorde des droits temporaires sur le terrain et la propriété à Bali. Le statut ressemble davantage à une location longue durée qu'à une pleine propriété. Cependant, 90 % des transactions foncières en Indonésie se font sous un accord de bail. C'est donc le régime standard du marché. Vous pouvez en apprendre davantage sur ces différences juridiques dans notre guide sur les droits de propriété en Indonésie.
Tarification dynamique des tokens : deux phases d'investissement
Comme les autres projets immobiliers tokenisés sur la plateforme Binaryx, ROOTS Villa 1 suit un modèle de tarification en deux phases, avec des prix de tokens progressivement croissants. Les premiers participants bénéficient du ROI de construction le plus élevé et du potentiel de rendement locatif le plus fort.
Indicateurs de la Phase 1
Lancement : 22 mai 2025
Total à lever : 116 723 $ (39 % du financement total)
| Prix du token | ROI de construction | Rendement annualisé de construction | Rendement locatif annualisé |
|---|---|---|---|
| Premier token : 28,00 $ | 26,07 % | 22,35 % | 13,21 % |
| Dernier token : 30,02 $ | 17,60 % | 15,08 % | 12,33 % |
Indicateurs de la Phase 2
Début : immédiatement après la clôture de la Phase 1 (généralement 30 jours)
À lever : 186 277 $
| Prix du token | ROI de construction | Rendement annualisé de construction | Rendement locatif annualisé |
|---|---|---|---|
| Premier token : 30,32 $ | 16,43 % | 14,08 % | 12,20 % |
| Dernier token : 31,62 $ | 11,65 % | 9,99 % | 11,70 % |
Côté France : profil investisseur, PT PMA, fiscalité
Pour un investisseur français qui regarde ROOTS Villa 1, trois points méritent attention au-delà des chiffres de rendement. Ils façonnent l'expérience réelle, et l'angle est rarement détaillé dans la documentation anglophone.
La diaspora française à Bali, un signal de demande locative durable. Le consulat général de France à Jakarta recense plusieurs milliers de ressortissants en Indonésie, avec une concentration importante sur l'île de Bali, notamment dans la zone Ubud-Canggu. Cette diaspora alimente une demande locative francophone récurrente, sur des séjours longue durée (3 à 12 mois). Elle s'ajoute au flux touristique mondial mentionné plus haut.
Le détour PT PMA évité grâce à la tokenisation. Un Français qui achète une villa balinaise en direct doit, en pratique, choisir entre deux voies. Soit passer par un bail Hak Sewa Bangunan. Soit constituer une société de droit indonésien à capitaux étrangers : la PT PMA. Cette structure exige un capital social significatif, plusieurs étapes notariales locales, et une gestion comptable annuelle en Indonésie. Le modèle tokenisé Binaryx contourne ce détour : la propriété est portée par une LLC américaine (Wyoming), et vous détenez des tokens qui matérialisent votre quote-part.
Fiscalité côté France : les revenus à déclarer. Les revenus locatifs perçus à l'étranger, et les éventuelles plus-values sur tokens, doivent être déclarés en France. Le traitement fiscal dépend de la structure juridique retenue et de votre situation personnelle. Selon les cas, on peut être sur un statut LMNP, un régime de revenus fonciers, ou une plus-value mobilière sur cession de tokens. Avant d'investir, consultez un fiscaliste familier des actifs étrangers tokenisés. Aucune classification fiscale unique ne s'applique mécaniquement à ce type de produit.
Préparez-vous à investir
La vente n'a pas encore commencé, mais vous pouvez vous préparer à l'avance et sécuriser votre entrée anticipée pour le meilleur ROI. Voici comment :
✅ Alimentez votre portefeuille en USDT (Polygon ou Tron).
✅ Suivez notre guide d'alimentation ou contactez notre support Telegram : @sales_binaryx.
✅ Programmez un rappel : 22 mai, 17h00 UTC
✅ Connectez-vous à la plateforme Binaryx, puis section « Construction »
✅ Rafraîchissez la page après la fin du compte à rebours et cliquez sur « Invest »
Début de la vente de tokens ROOTS Villa 1 :
🗓️ 22 mai 2025 (jeudi)
🕔 17h00 UTC/GMT
Pour aller plus loin sur l'investissement à Bali
- Immobilier à Bali en 2025 : climat, démographie et bascule économique
- Bali, meilleur endroit pour vivre et investir dans la pierre ?
- Les meilleurs quartiers de Bali pour vivre et acheter
- AWWA Hotel by Ribas : hôtel design jusqu'à 11,32 % d'APR locatif
- Mise à jour Binaryx : conférence Bali, 40 agents onboardés
Questions fréquentes sur l'investissement dans Roots Villa Bali
Quel est le ticket d'entrée minimum pour investir villa Bali Ubud via ROOTS Villa 1 ?
Le ticket d'entrée minimum sur ROOTS Villa 1 commence à 28 $ par token en Phase 1. Le prix monte à 30,02 $ en fin de Phase 1, puis jusqu'à 31,62 $ en Phase 2. Un investisseur français peut participer dès quelques dizaines de dollars. Pas besoin d'achat immobilier direct ni de constitution de PT PMA en Indonésie. Le paiement se fait en USDT sur Polygon ou Tron.
Comment fonctionne le bail leasehold de 29 + 10 ans à Bali ?
À Bali, environ 90 % des transactions foncières se font sous bail (Hak Sewa Bangunan), car la pleine propriété (Hak Milik) est réservée aux citoyens indonésiens. ROOTS Villa 1 est sécurisée sous un bail de 29 ans, avec une extension contractuelle de 10 ans, soit 39 ans au total. Cela offre une visibilité juridique suffisante pour amortir l'investissement, percevoir les revenus locatifs et planifier la sortie en 2026.
Quel rendement locatif annualisé peut-on espérer sur Roots Villa Bali après la livraison ?
Selon la phase d'entrée, le rendement locatif annualisé estimé varie de 11,70 % à 13,21 %. Les chiffres reposent sur les hypothèses de l'opérateur JEP, qui gère également la mise en location post-livraison. Ces estimations dépendent du taux d'occupation réel, du positionnement tarifaire et de la dynamique touristique d'Ubud. Aucun rendement n'est garanti. Le ROI de construction (jusqu'à 26,07 %) est, lui, plafonné par contrat sur la durée de 15 mois.
Quelle fiscalité s'applique en France sur les revenus de la villa tokenisée ?
Les revenus locatifs et plus-values issus de tokens immobiliers doivent être déclarés en France si vous y êtes résident fiscal. Le traitement fiscal dépend de la structure juridique du produit et de votre situation personnelle. Selon les cas, on peut être sur un régime de revenus de capitaux mobiliers, de revenus fonciers, de BIC en LMNP, ou de plus-value mobilière. Aucune classification unique ne s'applique automatiquement. Consultez un fiscaliste familier des actifs étrangers tokenisés avant d'investir.
Que se passe-t-il à la sortie du 22 juillet 2026 ?
La date de sortie contractuelle est fixée au 22 juillet 2026, soit 15 mois après le lancement. À cette date, la valeur cible de la villa atteint 353 000 $, contre 303 000 $ au prix de construction. Cela matérialise le ROI annoncé. L'investisseur peut céder ses tokens à la sortie. Il peut aussi continuer à percevoir le rendement locatif post-livraison, estimé entre 11,70 % et 13,21 % annualisé.
Comment Binaryx protège-t-elle les investisseurs internationaux ?
La plateforme Binaryx opère sous la législation sur les actifs numériques du Wyoming (W.S. SF0038). Pour chaque propriété, Binaryx crée une LLC dédiée aux États-Unis, qui détient légalement le bien immobilier. Quand vous achetez des tokens, vous devenez copropriétaire de cette LLC, ce qui place votre participation sous le droit américain. Cette structure permet d'éviter la mise en place d'une PT PMA en Indonésie pour chaque investisseur étranger.
Commencez votre investissement à Bali en 2 minutes
Créez votre compte Binaryx, alimentez en USDT et positionnez-vous sur ROOTS Villa 1 dès l'ouverture des ventes.
Voir les propriétés disponiblesÀ propos de la plateforme Binaryx
La plateforme Binaryx est une plateforme immobilière tokenisée, qui opère sous la législation sur les actifs numériques du Wyoming (W.S. SF0038). Pour chaque propriété, Binaryx crée une LLC dédiée aux États-Unis, qui possède légalement le bien immobilier. Lorsque vous achetez des tokens, vous devenez copropriétaire de cette LLC. Votre propriété est légalement protégée en vertu du droit américain.
Vous souhaitez en savoir plus sur Binaryx ? Consultez ces articles :






